物件説明
【おすすめポイント】
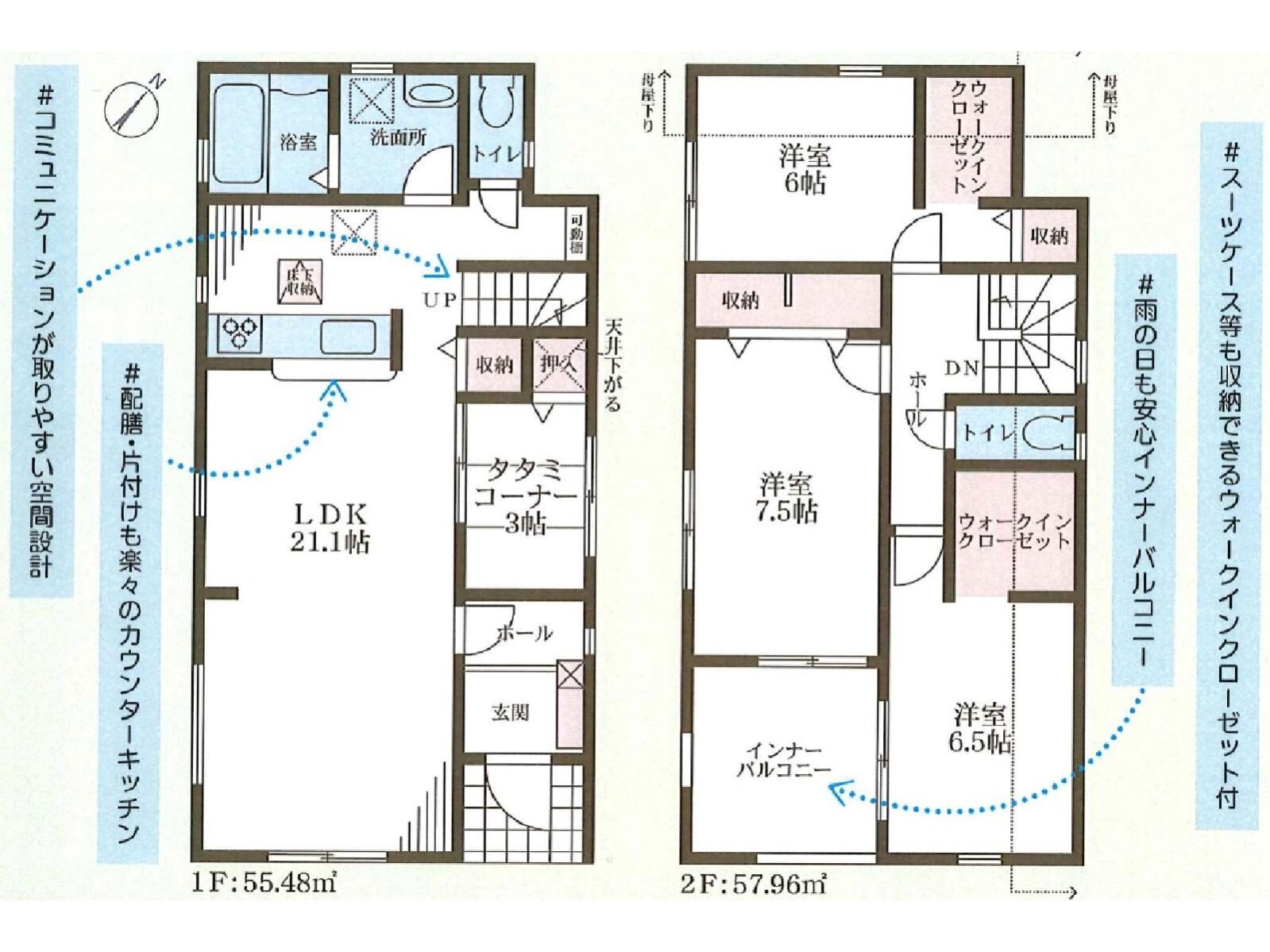
・2WICなど豊富な収納スペース♪
・LDK21.1帖で広々空間設計◎
・駐車スペース3台あり🚘🚘🚘
【交通】
・JR山陽本線「魚住」駅 バス14分「金ヶ崎ケヤキ公園東」徒歩1分
【学校区】
・魚住小学校
・魚住東中学校
No.1533
所在地
所在地:
明石市魚住町金ヶ崎
- 県: 兵庫県
- 沿線・駅名: JR山陽本線 魚住
- 市町村: 明石市 西部
- 価格 3,780万円
- 間取り 3LDK
- 物件ステータス 新築戸建て
- 完成時期 2026年4月
- 建物面積 113.44 m2
- 土地面積 178.55 m2
- 駐車台数 3
- ペット ペット可
- 入居時期 相談
- 階数 2階建て
- 性能 長期優良住宅(耐震性、省エネ性等 高い)
- 建物構造 木造
- 所有権 土地権利
- 築年月 2026年4月
- 都市計画 市外化区域
- 用途地域 第一種低層住居専用地域
- 建ぺい率 50%
- 容積率 100%

