物件説明
【おすすめポイント】
・残り4棟!
・全棟に駐車スペース2台あり!(車種による)
・駅、小学校、こども園など徒歩10分圏内☆
【交通】
・山陽本線「東二見」駅 徒歩10分
【学校区】
・錦浦小学校
・魚住中学校
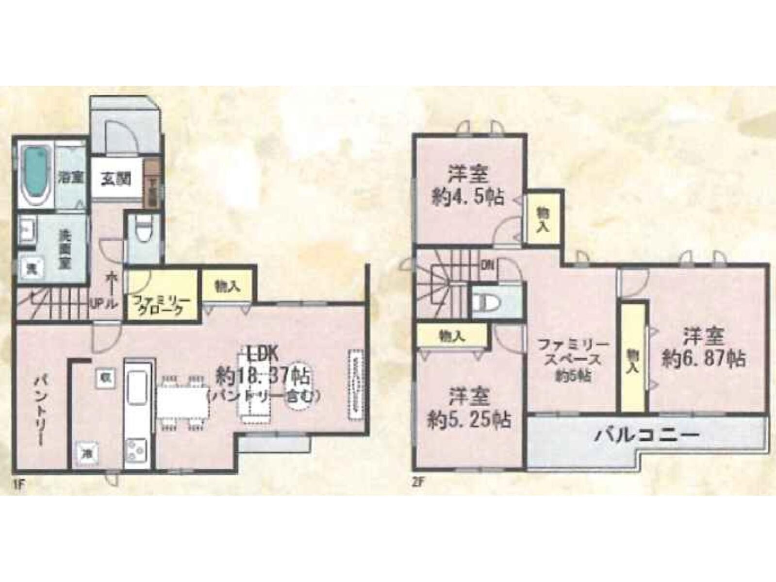
※画像は施工例です
No.01846
所在地
所在地:
明石市魚住町西岡
- 県: 兵庫県
- 沿線・駅名: 山陽電鉄 東二見
- 市町村: 明石市 西部
- 価格 2,990万円
- 間取り 3LDK
- 物件ステータス 新築戸建て
- 完成時期 2026年2月
- 建物面積 89.94 m2
- 土地面積 114.77 m2
- 駐車台数 2
- ペット ペット可
- 入居時期 相談
- 階数 2階建て
- 建物構造 木造
- 土地権利 所有権
- 築年月 2026年2月
- 都市計画 市外化区域
- 用途地域 工業地域
- 建ぺい率 60%
- 容積率 200%

