物件説明
【おすすめポイント】
・アキュラホーム施工のお家♪
・駐車スペース2台可能
・太陽光発電搭載!
・LDKには床暖房あり☆
・玄関キーはカード式電子錠
【交通】
・JR山陽本線「西明石」駅 徒歩16分
【学校区】
・鳥羽小学校
・野々池中学校
No.00009
所在地
所在地:
明石市明南町2丁目
- 県: 兵庫県
- 沿線・駅名: JR山陽本線 西明石
- 市町村: 明石市 東部
- 価格 4,180万円
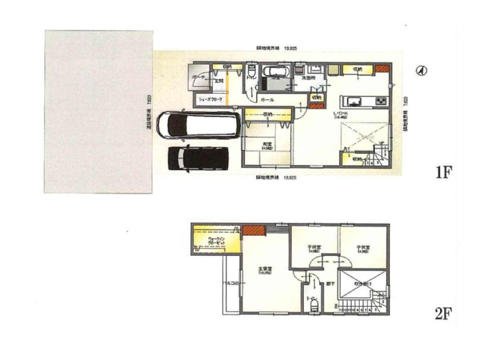
- 間取り 4LDK
- 物件ステータス 中古戸建て
- 完成時期 2018年12月
- 建物面積 100.19 m2
- 土地面積 105.04 m2
- 駐車台数 2
- ペット ペット可
- 入居時期 相談
- 階数 2階建て
- 建物構造 木造
- 土地権利 所有権
- 築年月 2018年12月
- 都市計画 市街化区域
- 用途地域 第一種低層住居専用地域
- 建蔽率 60%
- 容積率 100%

