新築戸建て
明石市大久保町谷八木

明石市大久保町谷八木

40187

物件ID

95.58 m2

建物面積

2025年10月

完成時期

 

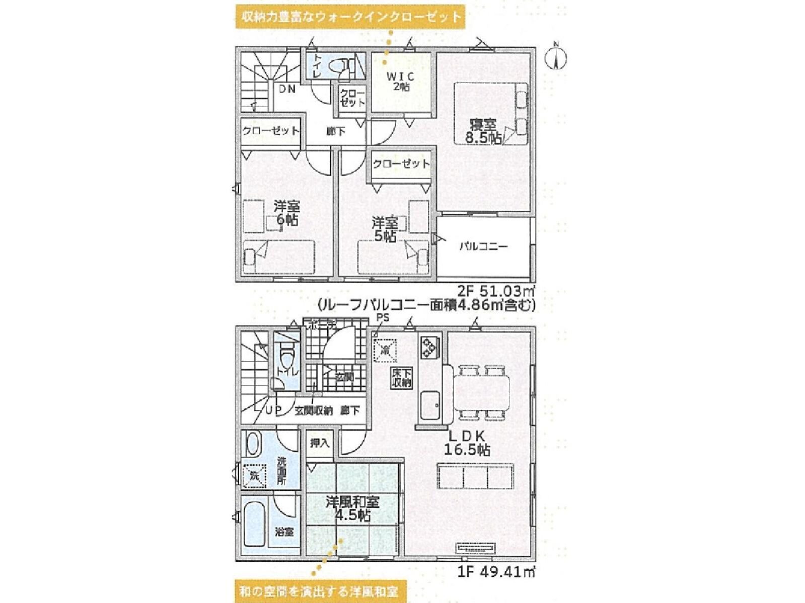
4LDK

間取り

3,380万円

物件説明

【おすすめポイント】

・残り8棟

・南向きルーフバルコニーで陽当たり良好☀️

・LDK約16帖で広々空間設計♪

・駐車スペース2台あります!

 

 

【交通】

・山陽電鉄「藤江」駅 徒歩9分

 

 

【学校区】

・谷八木小学校

・大久保中学校

 

 

 

No.00463

所在地

所在地: 明石市大久保町谷八木
  • 県: 兵庫県
  • 沿線・駅名: 山陽電鉄 藤江
  • 市町村: 明石市 西部
  • 価格 3,380万円
  • 間取り 4LDK
  • 物件ステータス 新築戸建て
  • 完成時期 2025年10月
  • 建物面積 95.58 m2
  • 土地面積 221.14 m2
  • Label Price Down
  • 駐車台数 2
  • ペット ペット可
  • 入居時期 相談
  • 階数 2階建て
  • 建物構造 木造
  • 土地権利 所有権
  • 築年月 2025年10月
  • 都市計画 市街化区域
  • 用途地域 第一種中高層住居専用地域
  • 建ぺい率 60%
  • 容積率 200%

物件までの道順

周辺情報

問い合わせ

神戸住宅販売株式会社

兵庫県明石市樽屋町15-17
0120-15-2402