物件説明
【おすすめポイント】
・東南角地♪
・こだわりの注文住宅!
・勝美住宅施工
・日当たり、通風良好
・駐車スペース2台可能♪
・リビング、ダイニング、和室にガス温水床暖房あり
【交通】
・山陽本線「大久保」駅 徒歩22分
【学校区】
・大久保小学校
・大久保北中学校
No.00491
所在地
所在地:
明石市大久保町松陰
- 県: 兵庫県
- 沿線・駅名: JR山陽本線 大久保
- 市町村: 明石市 西部
- 価格 4,080万円
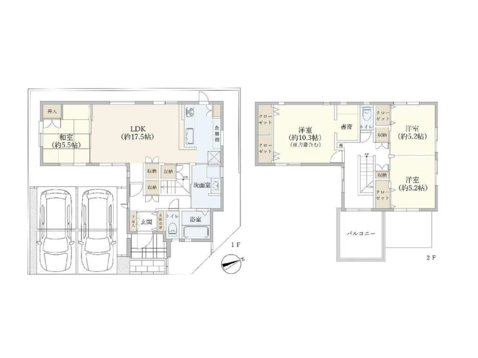
- 間取り 4LDK
- 物件ステータス 中古戸建て
- 完成時期 2018年8月
- 建物面積 114.59 m2
- 土地面積 132.30 m2
- 駐車台数 2
- ペット ペット可
- 入居時期 相談
- 階数 2階建て
- 建物構造 木造
- 土地権利 所有権
- 築年月 2018年8月
- 都市計画 市街化区域
- 用途地域 第一種中高層住居専用地域
- 建蔽率 60%
- 容積率 200%

