中古マンション
明石市大蔵天神町

シーサイドパレス明石錦明館8階部分

40055

物件ID

1977年6月

完成時期

 

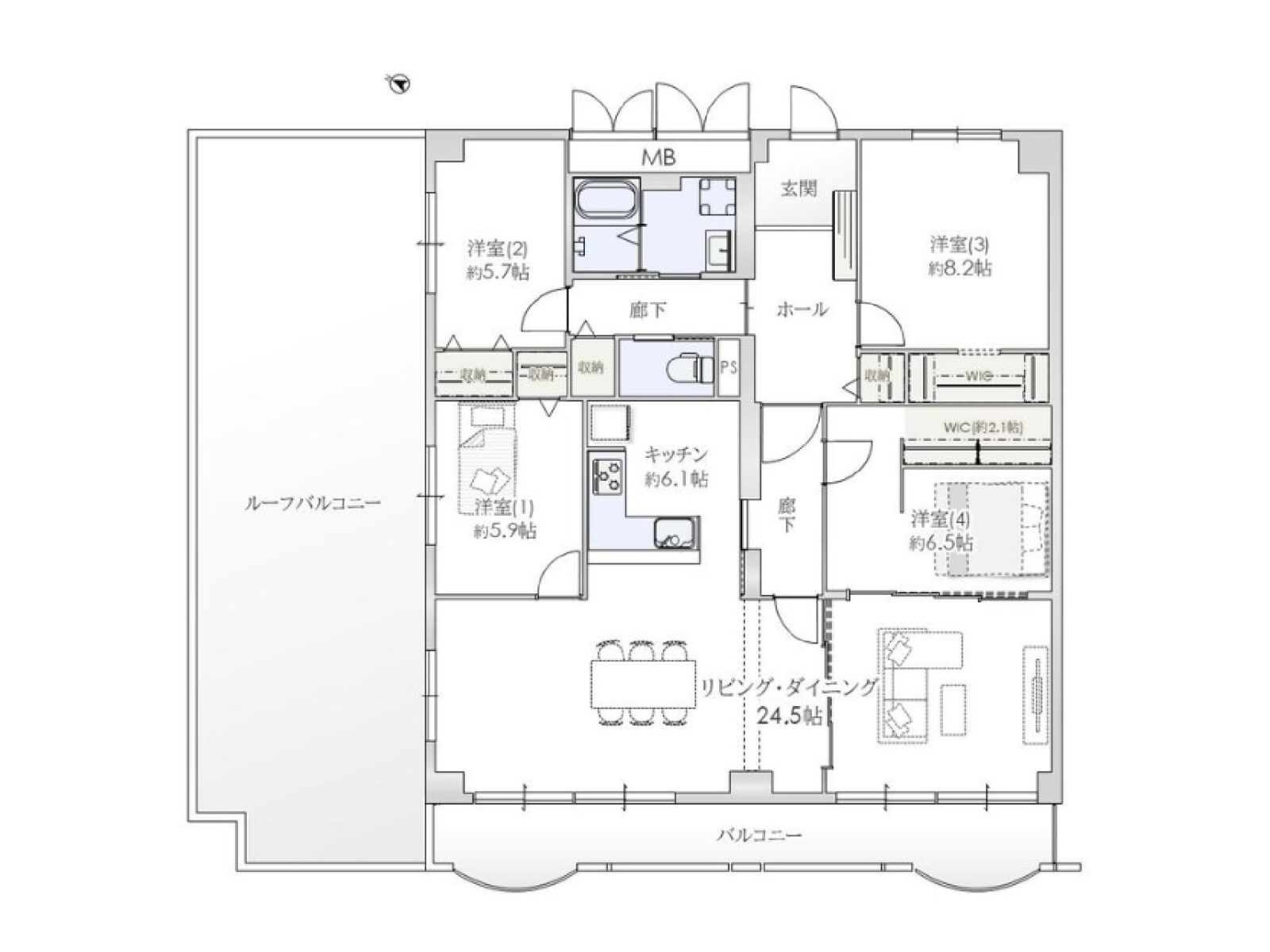
4LDK

間取り

3,350万円

物件説明

【おすすめポイント】

・フルリノベーション物件!

・角住戸

・淡路島望めます☆

・2WAYアクセス可能♪

 

 

 

【交通】

・山陽電鉄「人丸」駅 徒歩6分

・JR山陽本線「明石」駅 徒歩15分

 

 

【学校区】

・中崎小学校

・大蔵中学校

 

 

No.00022

所在地

所在地: 明石市大蔵天神町
  • 県: 兵庫県
  • 沿線・駅名: 山陽電鉄 人丸前
  • 市町村: 明石市 東部
  • 価格 3,350万円
  • 間取り 4LDK
  • 物件ステータス 中古マンション
  • 完成時期 1977年6月
  • 駐車台数 1
  • ペット ペット不可
  • 入居時期 相談
  • 階数 3階建以上
  • 建物構造 鉄筋系
  • 土地権利 所有権
  • 築年月 1977年6月
  • 規模 8階建て/8階部分
  • 専有面積 135.12㎡
  • バルコニー面積 14.92㎡
  • 管理費 16,220円/月
  • 修繕積立金 22,980円/月

物件までの道順

周辺情報

問い合わせ

神戸住宅販売株式会社

兵庫県明石市樽屋町15-17
0120-15-2402