物件説明
【おすすめポイント】
・生活至便な立地♪
・明石海峡大橋望めます☆
・リノベーション物件!
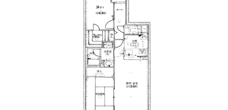
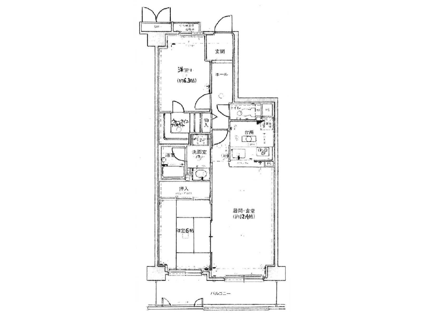
◎リノベーション内容
*キッチンの水栓・コンロ新調
*浴室・洗面台(三面鏡・シャンプードレッサー)
・タオル掛け新調
*タンク一体型便器(シャワー・リモコン)・タオル掛け
・ペーパーホルダー新調
*壁・天井クロス貼り替え・洋室フリーリング張り替え
・水廻り床(クッションフロア).巾木(ビニール)新調
*畳新調、襖貼り替え
*給湯器新調
*ハウスクリーニング
【交通】
・山陽電鉄「西新町」駅 徒歩10分
【学校区】
・林小学校
・衣川中学校
所在地
所在地:
明石市船上町
- 県: 兵庫県
- 沿線・駅名: 山陽電鉄 西新町
- 市町村: 明石市 東部
- 価格 2,080万円
- 間取り 2LDK
- 物件ステータス 中古マンション
- 完成時期 1996年7月
- ペット ペット可
- 入居時期 即入居可
- 階数 平屋
- 建物構造 鉄筋系
- 土地権利 所有権
- 築年月 1996年7月
- 規模 8階建て/7階部分
- 専有面積 65.22㎡
- バルコニー面積 9.18㎡
- 管理費 7,830円/月
- 修繕積立金 13,040円/月

