物件説明
【おすすめポイント】
・スーパー、コンビニ徒歩圏内♪
・駐車スペース2台あり🚘(車種による)
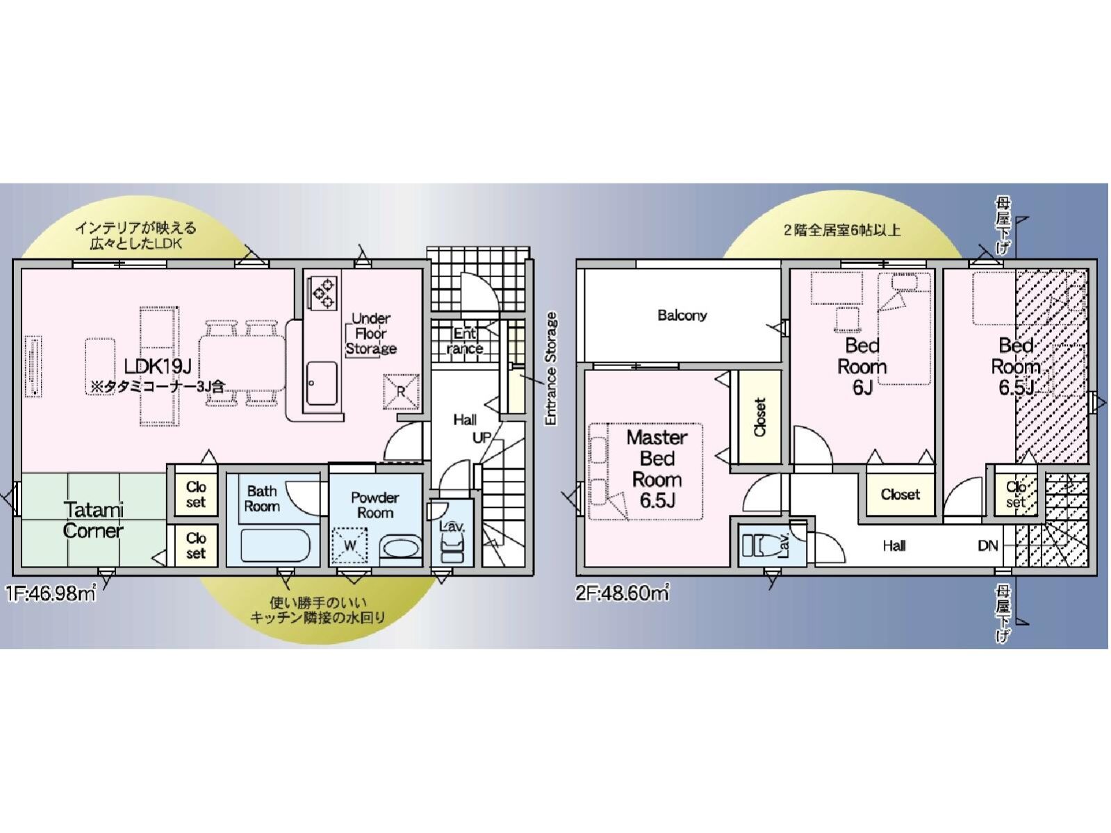
・LDK約18帖で、のびのび空間です☆
【交通】
・山陽電鉄「東二見」駅 徒歩10分
【学校区】
・錦浦小学校
・魚住中学校
No.01919
所在地
所在地:
明石市魚住町西岡
- 県: 兵庫県
- 沿線・駅名: 山陽電鉄 魚住
- 市町村: 明石市 西部
- 価格 要問合せ
- 間取り 4LDK
- 物件ステータス 新築戸建て
- 完成時期 2025年9月
- 建物面積 92.63 m2
- 土地面積 99.31 m2
- 駐車台数 2
- ペット ペット可
- 入居時期 相談
- 階数 2階建て
- 性能 制震・免震・耐震
- 建物構造 木造
- 土地権利 所有権
- 築年月 2025年9月
- 都市計画 市街化区域
- 用途地域 第一種住居地域
- 建ぺい率 60%
- 容積率 200%

