57 件
並び替え
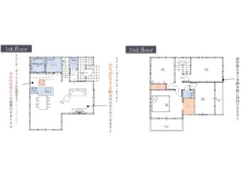
4LDK
(102.67 m2)
新築戸建て
3,880万円
